Portfolio

The Living courtyard

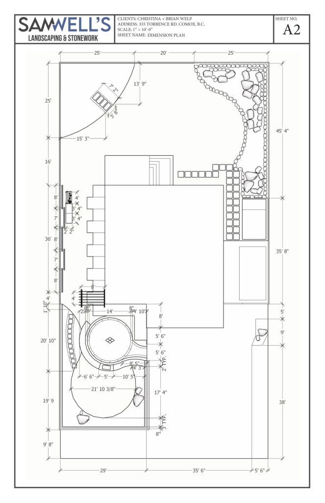
CONCEPT DRAWING

Project Overview

The homeowners brought forward a range of ideas that required a clear spatial hierarchy to unify the site while allowing each area to retain its own identity. The design establishes a sequence of distinct yet interconnected outdoor spaces, informed by Nordic restraint, mid-century modern clarity, and the informality of an English garden.

Existing site features—including a food forest and woodland-inspired rock garden—were preserved and elevated to become immersive landscape experiences, reinforcing a sense of enclosure and connection to the surrounding ecosystem. 

The final design emerged through an iterative process of concept development and refinement, resulting in a resolved set of construction documents that clearly define spatial relationships, material expression, and planting strategy across the site.

Site Features

  • Edible Food Forest
  • Woodland Tiered Rock Garden
  • Curved Corten Steel Planting Beds
  • Compost Bins
  • Potting Table
  • Japanese Entrance Trellis
  • Circular Paving Area in ‘Courtyard’
  • Concrete Stepping Stones
  • Custom Japanese Inspired Privacy Trellis
  • Automated Irrigation System
  • Planting Recommendations List

Key Features

Central Paving Area

A circular central paved area that serves as a welcoming focal point for daily coffee moments and shared meals with friends.

Edible Food Forest

An edible food forest that largely preserves existing plantings, carefully arranged to support productivity while ensuring convenient access for harvesting.

Raised Corten Steel Planting Beds

Gently curved, raised Corten steel herb beds that provide structure and warmth, serving as a visual backdrop to the central paving and a soft frame to the existing lawn for morning yoga.

Custom Privacy Trellis

A custom privacy trellis inspired by Japanese pagoda forms, designed to provide an elegant visual screen from neighboring properties when viewed from the home’s second floor.

Tiered Woodland-Inspired Rock Garden

A naturalistic, tiered rock garden that echoes the local woodland ecosystem through varied boulder forms and layered plantings, blending seamlessly into the landscape as though shaped entirely by nature.

Layered Naturalistic Planting

A naturalistic, layered planting design that blends Nordic restraint, mid-century clarity, and English garden charm, using paperbark trees, flowing grasses, and wildflowers to create a space that feels both curated and comfortably lived in.

CONSTRUCTION DOCUMENT SET